Blueprint of a small house floor plan showing a living/dining area, kitchen, bedroom, bathroom, pantry, and various doors and windows with measurements.
Line drawing of a small, white house with a gabled roof, two windows, and a door, surrounded by a fenced outdoor area.

30TH PL, L.A. ADU

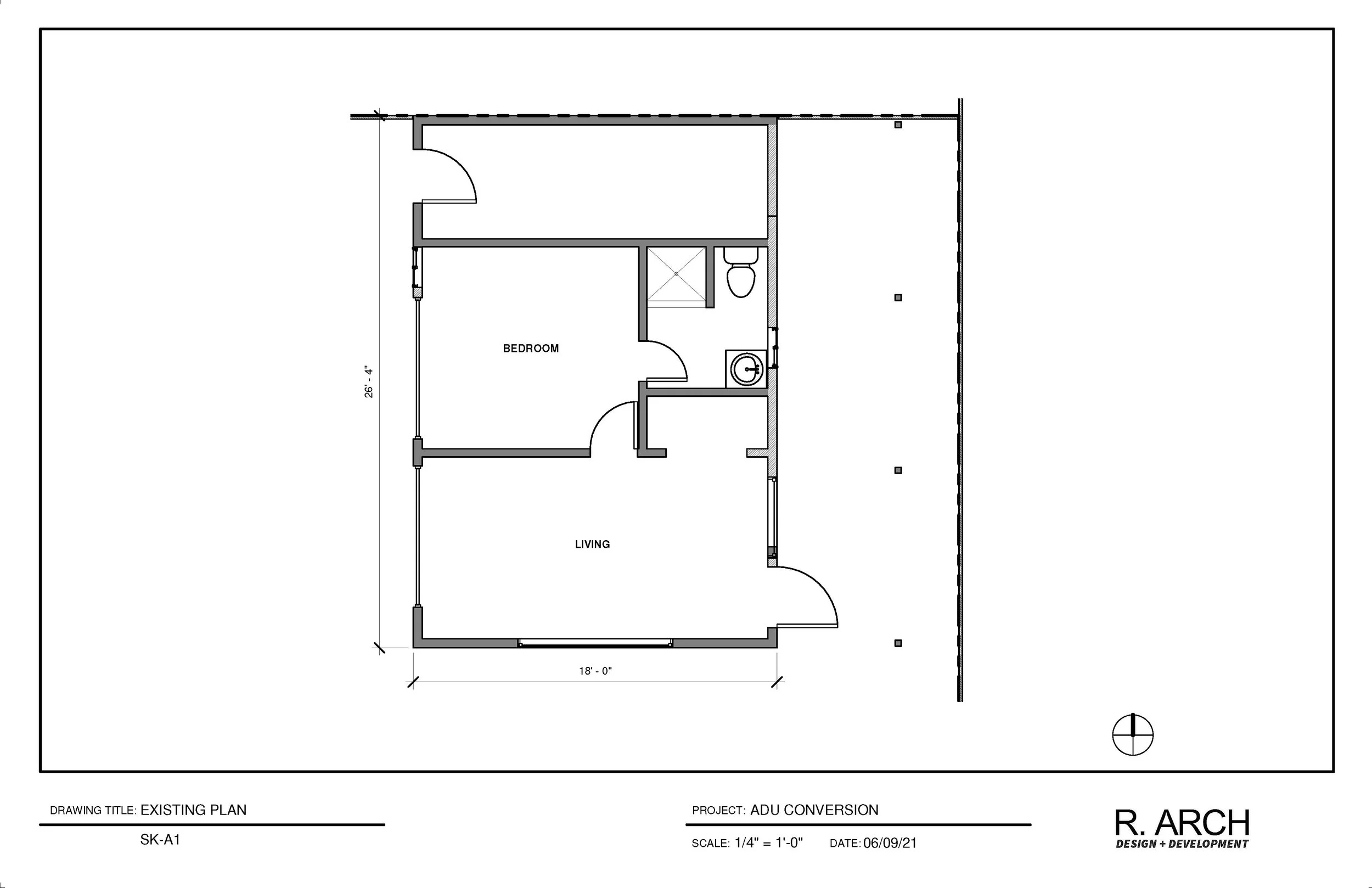
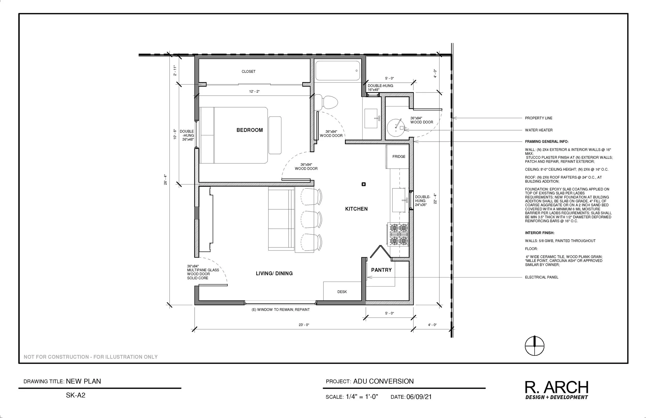
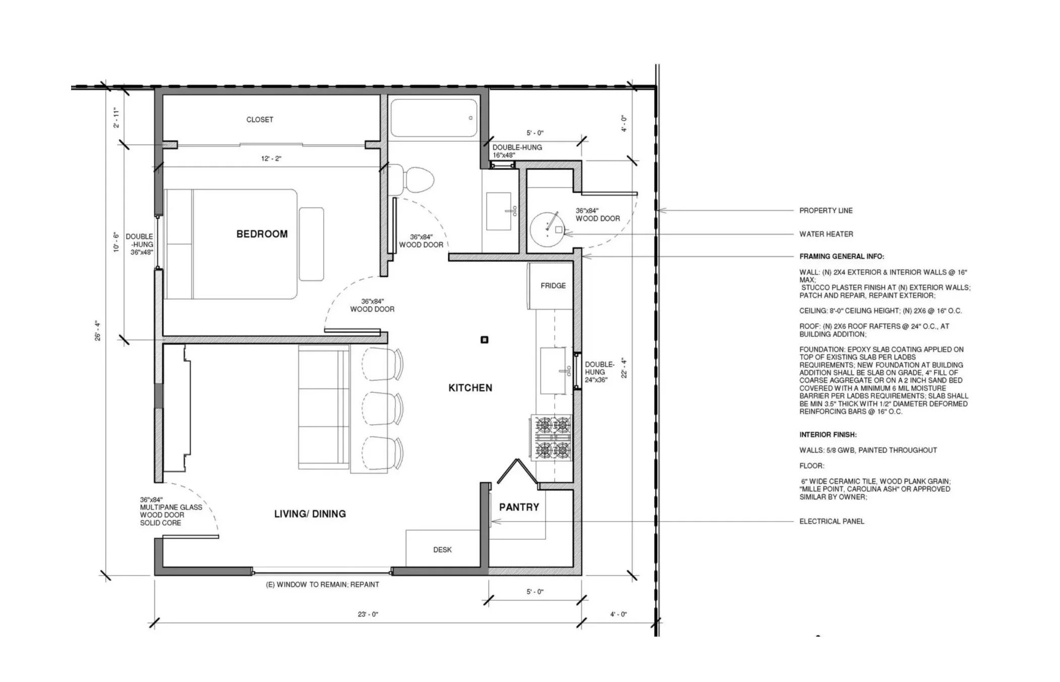
R. ARCH ASSISTED THE OWNER IN CONVERTING AND LEGALIZING AN EXISTING, UNPERMITTED GARAGE UNIT INTO A PERMITTED, RENTABLE BACKYARD UNIT—MAXIMIZING INTERIOR SPACE AND SECURING THE BUILDING PERMIT.

LOCATION L.A., CALIFORNIA

SERVICES RENDERED CODE-COMPLIANCE, DESIGN, ARCHITECTURAL DESIGN AND PRODUCTION, PERMIT EXPEDITING, BUILDING PERMIT PROCUREMENT

YEAR 2021

ARCHITECT R.ARCH

Floor plan of a small house showing a bedroom, living room, bathroom, and outdoor area, with dimensions and layout details.
A detailed architectural floor plan for a small home showing layout of rooms, including a bedroom, bathroom, kitchen, living/dining area, pantry, and closet, with specific measurements and features.