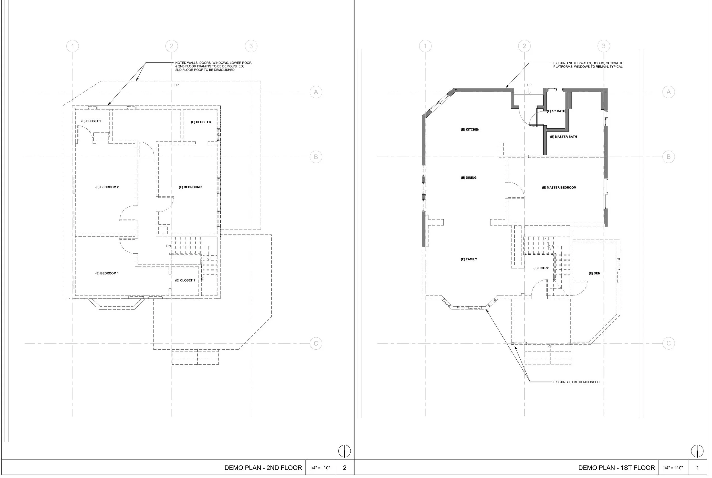
37th St. Remodel

 

overview

R. Arch teamed with a local framing contractor to produce permit drawings for their home remodel. We were happy to be the Architect Of Record while the contractor remained the owner, designer, and builder.