ADU / CONVERSIONS

EL SEGUNDO GARAGE CONVERSION

ARCHITECT R.ARCH

LOCATION EL SEGUNDO, L.A. CALIFORNIA

ROLE DESIGN, PERMIT RESEARCH

SANTA MONICA ADU

ARCHITECT R.ARCH

LOCATION SANTA MONICA, L.A. CALIFORNIA

ROLE PERMITTING, CONSTRUCTION ADMIN

Empty modern kitchen with gray cabinets, stainless steel appliances, wooden floors, and a black front door with horizontal window slits.

CARSON ADU

ARCHITECT R.ARCH

LOCATION CARSON, L.A. CALIFORNIA

ROLE DESIGN, PERMITTING

View of a cozy outdoor covered patio area with a small table and chairs, open to an indoor kitchen with white cabinets, black backsplash, and stainless steel appliances, illuminated by warm lighting at dusk.

ALHAMBRA ADU

ARCHITECT R.ARCH

LOCATION ALHAMBRA, L.A. CALIFORNIA

ROLE DESIGN, PERMITTING

Architectural drawings of a house from different angles: east, south, west, north, and an isometric view. The house has a beige exterior with dark gray roof and window/door frames.

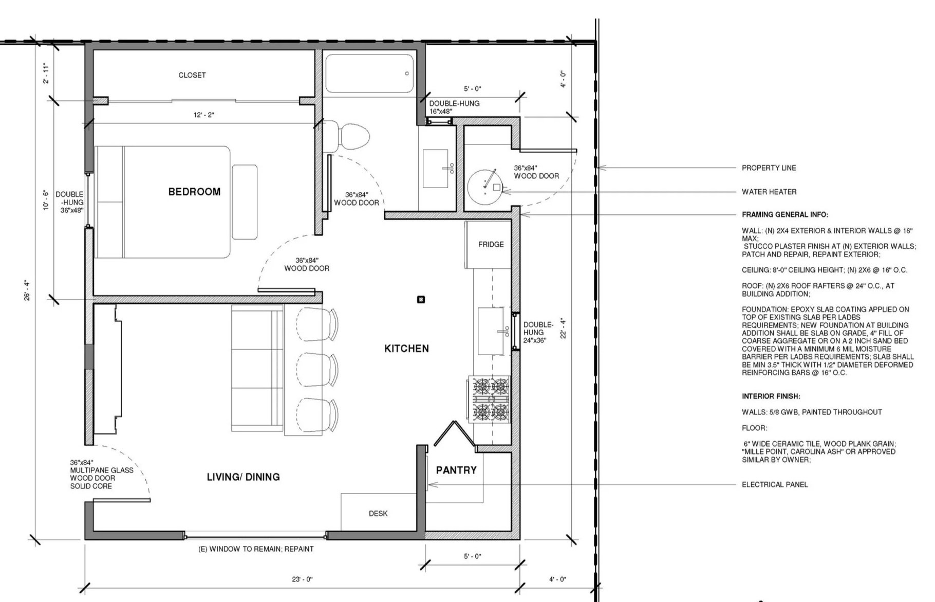
INGLEWOOD ADU

ARCHITECT R.ARCH

LOCATION INGLEWOOD, L.A. CALIFORNIA

ROLE DESIGN, PERMITTING

Floor plan of a small house with a bedroom, bathroom, kitchen, living/dining area, and a pantry. The bedroom has a double-hung window and a closet. The bathroom contains a bathtub and toilet. The kitchen has a fridge, a double-hung window, and a counter with three bar stools. The living/dining area features a large multipane glass door, and there's a desk near the window. The plan includes measurements and construction details.

30TH PL, L.A. ADU

ARCHITECT R.ARCH

LOCATION L.A., CALIFORNIA

ROLE DESIGN, PERMITTING

Architectural blueprint of a house, showing roof plan, floor plan, and cross-sectional views of the living room and bedroom.

71ST ST, L.A. ADU

ARCHITECT R.ARCH

LOCATION L.A., CALIFORNIA

ROLE PERMITTING, CODE ENFORCEMENT